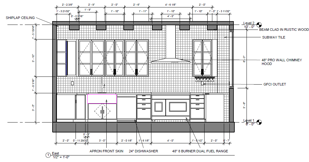
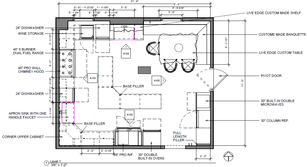
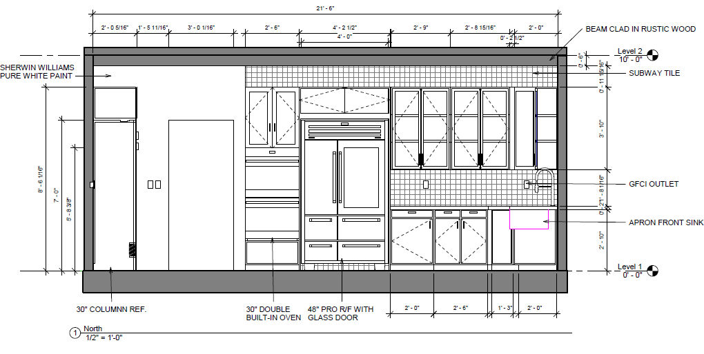
Chef’s Kitchen
Designed for celebrity chef Chris Fischer, this project marries two important details of his life and upbringing to create a spacious and luxurious chef’s kitchen. Because he was rasied on his family’s farm on Martha’s Vineyard, this project is a combination of rustic farmhouse style and beachy airy Martha’s Vineyard.

