
Rainforest Alliance Corporate Bathroom
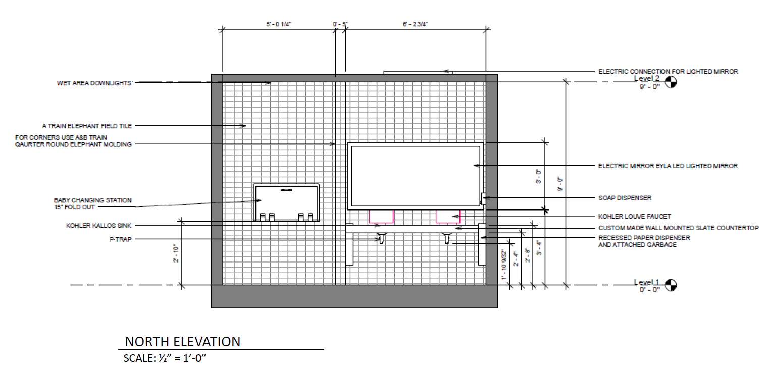
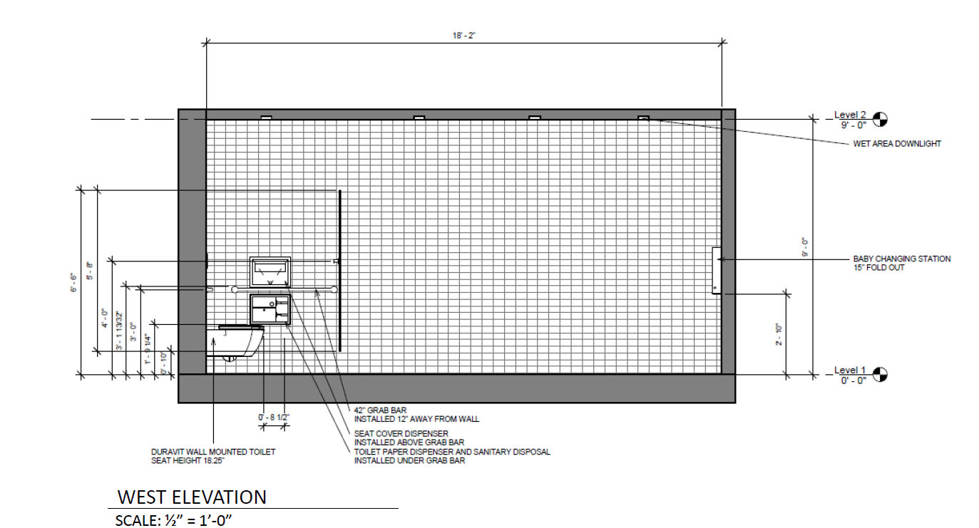
The objective for this project was to create an ADA compliant bathroom for my office project, the Rainforest Alliance Headquarters.
The objective for this project was to create an ADA compliant bathroom for my office project, the Rainforest Alliance Headquarters.